Như một kiệt tác vươn mình giữa lòng đại đô thị Sycamore, Orchard Grand được kiến tạo với ý tưởng “Thác nước độc bản” đầy cảm hứng, kết hợp cùng chuẩn mực phát triển quốc tế của CapitaLand – thương hiệu bất động sản danh tiếng từ Singapore. Đây không chỉ là phân khu cao tầng cuối cùng, mà còn là dấu ấn kiến trúc biểu tượng, nơi định hình phong cách sống thượng lưu tại trung tâm phát triển năng động bậc nhất.
Với 2 tòa tháp cao 24 tầng, tổng cộng 517 căn hộ cao cấp, Orchard Grand mang đến bộ sưu tập giới hạn từ 2PN, 3PN, Duplex, Penthouse, đáp ứng trọn vẹn nhu cầu an cư và đầu tư. Không gian sống nơi đây được chăm chút đến từng chi tiết, kết hợp cùng 99 tiện ích wellness quốc tế trải dài trên 4 tầng, nổi bật với Tea Atelier trên không – điểm nhấn kiến tạo nên phong cách sống cân bằng, tinh tế và riêng tư dành cho cộng đồng cư dân tinh hoa.
HOTLINE: 0977.090.720
Orchard Grand tọa lạc ngay mặt tiền đại lộ Hùng Vương – trục huyết mạch của phường Bình Dương, trái tim của đại đô thị Sycamore do CapitaLand phát triển. Đây là vị trí chiến lược, hội tụ đầy đủ giá trị về giao thông – thương mại – giáo dục – văn hóa, mang đến sự thuận tiện tối đa cho cư dân tinh hoa.
Từ dự án, chỉ trong 3 – 5 phút di chuyển, cư dân dễ dàng tiếp cận:
Trung tâm hành chính Hồ Chí Minh cơ sở 1 – nơi tập trung gần 40 sở, ban ngành.
Các trung tâm thương mại & dịch vụ: SORA Gardens SC, Hikari, Midori Park Square, WTC Gateway.
Không gian văn hóa – triển lãm: WTC Tower, WTC Expo – điểm đến của các sự kiện quốc tế.
Hệ thống giáo dục chuẩn quốc tế: Đại học Quốc tế Miền Đông (EIU), Trường Quốc tế Singapore, Việt Hoa, Nguyễn Khuyến, Ngô Thời Nhiệm.
Tiện ích thể thao & giải trí: SORA Gardens Links, sân thể thao công cộng, sân golf Twin Doves.
Orchard Grand không chỉ sở hữu vị trí “vàng” ngay trung tâm phát triển năng động bậc nhất, mà còn mở ra chuẩn mực sống cân bằng, kết nối và bền vững, khẳng định đẳng cấp sống tinh hoa của cộng đồng cư dân Sycamore.
Orchard Grand được kiến tạo như một resort khép kín giữa lòng đại đô thị Sycamore, nơi cư dân không chỉ sở hữu căn hộ sang trọng mà còn tận hưởng một hệ sinh thái tiện ích toàn diện.
Với gần 99 tiện ích wellness chuẩn quốc tế, phân bổ tinh tế trên 4 tầng tiện ích (1, 4, 13 và 23), dự án mang đến hành trình sống cân bằng, đáp ứng mọi nhu cầu từ thư giãn, rèn luyện sức khỏe đến gắn kết cộng đồng.
Thiết kế “Thác nước độc bản” – biểu tượng kiến trúc giàu cảm hứng, mang thiên nhiên đến gần từng nhịp sống.
Tea Atelier – Phòng thưởng trà trên không: không gian thư giãn riêng tư, ngắm trọn vẹn cảnh quan thành phố mới.
Chuỗi hồ bơi resort & hồ bơi trẻ em: mang đến những phút giây nghỉ dưỡng ngay tại gia.
Trung tâm thể thao – gym & yoga hiện đại: giúp cư dân duy trì lối sống năng động, khỏe mạnh.
Sky Garden & vườn cảnh quan đa tầng: phủ xanh toàn dự án, kiến tạo bầu không khí trong lành.
Không gian cộng đồng: lounge sang trọng, khu vui chơi trẻ em, phòng sinh hoạt chung và co-working space – gắn kết cư dân tinh hoa.
An ninh 24/7 & quản lý vận hành quốc tế: đảm bảo sự an tâm, riêng tư và tiện nghi tuyệt đối.
Tại Orchard Grand, mỗi tiện ích không chỉ phục vụ nhu cầu sử dụng, mà còn được nâng tầm thành trải nghiệm sống tinh tuyển, khẳng định đẳng cấp và gu sống khác biệt của chủ nhân.
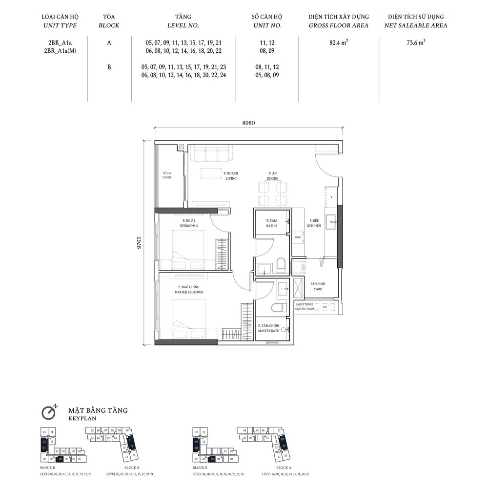
| Loại hình | Diện tích (NSA) |
|---|---|
| Căn hộ 2PN | ~75 m² |
| Căn hộ 3PN | ~108–113 m² |
| Duplex (2PN) | ~96 m² |
| Penthouse | ~275–495 m² |
Orchard Grand mang đến bộ sưu tập căn hộ đa dạng từ 2PN, 3PN, Duplex đến Penthouse, với thiết kế tinh tế, tối ưu công năng và tầm nhìn khoáng đạt. Mỗi không gian đều được chăm chút để mang lại sự riêng tư, thoáng đãng và trải nghiệm sống đẳng cấp cho cư dân.




























CapitaLand mang đến chính sách thanh toán linh hoạt, giúp khách hàng dễ dàng sở hữu căn hộ tại Orchard Grand:
Phương án chuẩn: Thanh toán theo tiến độ xây dựng, chia nhỏ thành nhiều đợt đến khi nhận nhà.
Phương án hỗ trợ ngân hàng: Được vay vốn với tỷ lệ cao, ưu đãi lãi suất và ân hạn gốc đến khi bàn giao.
Thanh toán nhanh: Nhận chiết khấu hấp dẫn cho khách hàng thanh toán sớm.
Chính sách được thiết kế để phù hợp với nhiều nhu cầu tài chính khác nhau, tối ưu dòng tiền cho cả khách hàng ở thực lẫn nhà đầu tư.
HOTLINE: 0977.090.720
Orchard Grand được phát triển theo tiêu chuẩn công trình xanh EDGE của IFC – World Bank Group, hướng đến không gian sống tiết kiệm năng lượng, thân thiện môi trường và bền vững lâu dài. Thiết kế tối ưu ánh sáng, gió tự nhiên, cùng vật liệu và thiết bị tiết kiệm giúp cư dân vừa tận hưởng cuộc sống xanh, vừa gia tăng giá trị đầu tư.
Nhà mẫu Orchard Grand được thiết kế như một bản thể hoàn chỉnh của dự án, nơi khách hàng có thể cảm nhận trực tiếp sự khác biệt trong từng chi tiết. Từ bố trí không gian, lựa chọn vật liệu, ánh sáng cho đến nội thất, tất cả đều tái hiện trọn vẹn phong cách sống sang trọng và chuẩn mực quốc tế mà CapitaLand Development hướng đến.
Đây không chỉ là nơi tham quan, mà còn là trải nghiệm sống thực tế:
Cảm nhận không gian mở, thoáng đãng với cửa kính Low-E tràn sáng.
Trải nghiệm nội thất bàn giao cao cấp được sắp đặt tinh tế.
Tưởng tượng trọn vẹn cuộc sống tại Orchard Grand trong tương lai.
Nhà mẫu Orchard Grand chính là cánh cửa bước vào thế giới sống tinh tuyển, giúp khách hàng đưa ra quyết định đầu tư và an cư với sự an tâm tuyệt đối.
Copyright © 2025 Make with 🤍 HausLand
Quý khách vui lòng diền thông tin để tải bảng giá chi tiết qua Zalo, SMS